Ceres Memorial Hall

Ceres, Fife

Skip to content
  • Home
  • Facilities
    • Floorplan
    • Gallery
  • Rates
  • Calendar
  • Contact
    • Conditions of Use
Search

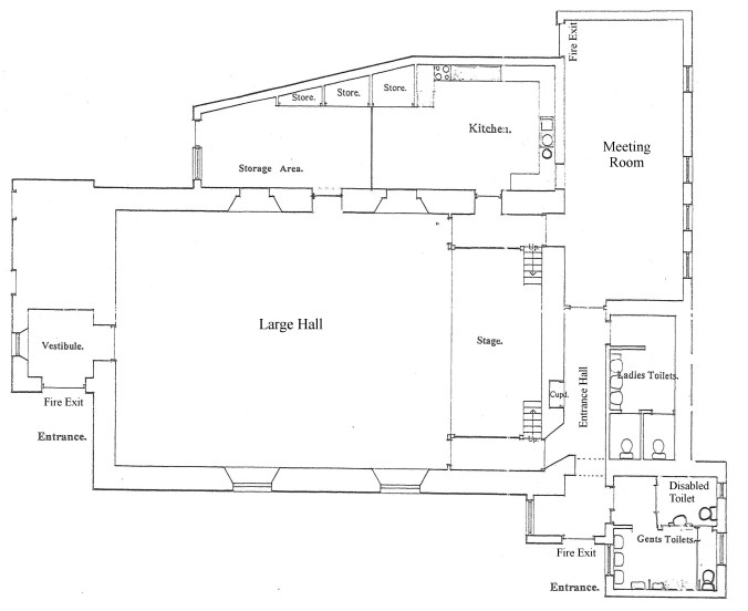
Floorplan

VillageHallPlan

Share this:

  • Share on X (Opens in new window) X
  • Share on Facebook (Opens in new window) Facebook
Like Loading...
Create a free website or blog at WordPress.com.
Privacy & Cookies: This site uses cookies. By continuing to use this website, you agree to their use.
To find out more, including how to control cookies, see here: Cookie Policy
    • Ceres Memorial Hall
    • Sign up
    • Log in
    • Copy shortlink
    • Report this content
    • Manage subscriptions
 

Loading Comments...
 

    %d